您的位置:网站首页 > 产品中心 > 刀型闸阀 > 带盖刀闸阀 > 圆型带盖刀闸阀 > 正文

DMZ573伞齿轮传动带盖刀闸阀(圆形法兰)

DMZ573伞齿轮传动带盖刀闸阀(圆形法兰)

 

详细介绍:

PFZ573型伞齿轮暗板刀型闸阀DMZ573型伞齿轮暗板刀型闸阀,APZ573型伞齿轮暗板刀型闸阀主要性能规范

公称压力(MPa)
壳体试验(MPa)
密封试验(MPa)
工作温度
适用介质
1.0
1.6
1.5
2.4
1.1
1.8
≤100℃
≤100℃
纸浆、污水、煤浆、灰、渣水混和物

伞齿轮暗板刀形闸阀伞齿轮暗板刀闸阀伞齿轮暗板刀形浆液阀主要零部件材质

体、盖
闸阀
阀杆
密封面
不锈钢、碳钢、灰铸铁
碳钢、不锈钢
不锈钢
橡胶、四氟、不锈钢、硬质合金

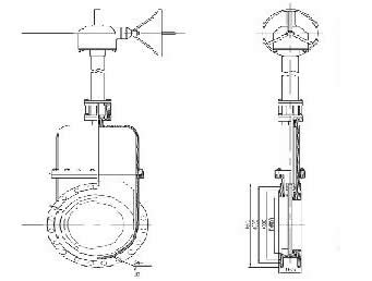
DMZ573伞齿轮暗板闸阀,伞齿轮暗板排渣闸阀,伞齿轮暗板矿浆闸阀的构造图及主要外形及连接尺寸(mm)



MPa
DN
L
D
D1
D2
H
N-M
D0
W(Kg)
1.0
50
43
160
125
100
330
4-M16
180
65
46
180
145
120
360
4-M16
180
80
46
195
160
135
390
4-M16
220
100
52
215
180
155
440
8-M16
220
125
56
245
210
185
510
8-M16
230
150
56
280
240
210
600
8-M20
280
200
60
335
295
265
700
8-M20
360
250
68
390
350
320
840
12-M20
360
300
78
440
400
368
960
12-M20
400
350
78
500
460
428
1110
16-M20
400
400
102
565
515
482
1250
16-M22
400
450
114
615
565
532
1380
20-M22
530
500
127
670
620
585
1530
20-M22
530
600
154
780
725
685
1800
20-M27
600
700
165
895
840
800
2150
24-M27
600
800
190
1010
950
898
2420
24-M30
680
900
203
1110
1050
1005
2680
28-M30
680
1000
216
1220
1160
1115
3100
28-M30
700
1200
254
1450
1380
1325
3450
32-M36
800
1.6
50
43
160
125
99
330
4-M16
180
65
46
185
145
120
360
4-M16
180
80
46
200
160
135
390
8-M16
220
100
52
220
180
155
440
8-M16
220
125
56
250
210
185
510
8-M16
230
150
56
285
240
210
600
8-M20
280
200
60
340
295
265
700
12-M20
360
250
68
405
355
310
840
12-M22
360
300
78
460
410
375
960
12-M22
400
350
78
520
470
435
1110
16-M22
400
400
102
580
525
485
1250
16-M27
400
450
114
640
585
545
1380
20-M27
530
500
127
715
650
609
1530
20-M30
530
600
154
840
770
720
1800
20-M36
600
700
165
910
840
788
2150
24-M36
600
800
190
1025
950
898
2420
24-M36
680
900
203
1125
1050
998
2680
28-M36
680
1000
216
1255
1170
1110
3100
28-M42
700
1200
254
1485
1390
1325
3450
32-M48
800